





1 / 6




- Produktdetaljer
- Produktomtaler
- Spesifikasjoner
Produktdetaljer
Hyggevik er en serie anneks med store glassflater og en rekke muligheter. Arealeffektivt anneks med to rom og store glassflatene som gir et luftig og eksklusivt utseende. Med fokus på god kvalitet og solid konstruksjon er du sikret et anneks vil stå støtt gjennom mange år med mye glede og bruk for hele familien.
Materiale
Annekset leveres i ubehandlet gran. Det er avgjørende for produktets kvalitet og levetid at det får hensiktsmessig behandling både ut- og innvendig.
Dører og vinduer leveres med aluminiumsramme av høy kvalitet, samt 2-lags sikkerhetsglass.
Egenskaper
- Innvendig areal 15,29 kvm
- Dobbeltdør
- Store glassflater
Dimensjoner
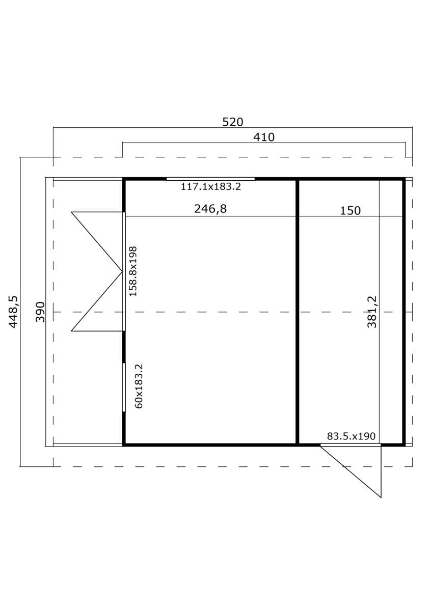
- Størrelse BxD: 410x390 cm
- Materialtykkelse: 44 mm
- Mønehøyde: 330,6 cm
- Gesimshøyde: 228 cm
- Takareal: 26,52 kvm
- Dørmål: BxH: 158x198 cm
- Vekt: 1558 kg
Montering
Det er svært viktig at annekset monteres på et fast og stødig underlag. Dette kan gjøres på flere måter, men det viktigste er at underlaget er i vater og vinkel, samt holder seg stabilt over tid.
Les den vedlagte monteringsveiledningen nøye før du setter i gang. Man bør være 2 personer for å sette opp annekset.
Fundament
For å få full glede av annekset er det svært viktig at den står montert på et fast og stødig underlag. Det anbefales å lage en grunnramme av impregnert materiale.
Takdekke og produkter for fundament/ grunnramme kjøpes separat. Husk også grunning og maling/ beis.
På værutsatte steder må du vurdere behov for ekstra sikring av annekset, og ved ekstra fuktig eller salt klima bør festemidler byttes ut med rustfritt/ syrefast (kjøpes separat)
Ved behov for lagring før montering må annekset oppbevares flatt og tørt, men unngå oppvarmede rom og sterk sol.
Lover og regler
Oppføring av dette annekset er normalt ikke søknadspliktig, men sjekk alltid lokale krav i kommunen hvor du skal sette den opp.
Vedlikehold og lagring
Ubehandlet treverk blir grått hvis det blir værende ubehandlet over tid og kan bli blått og begynne å råtne. For å beskytte treverket, må det før montering behandles med grunning. Etter montering må annekset behandles utvendig med beis eller maling og innvendig med ønsket produkt. Husk at også vindusrammer og dører må behandles på begge sider.
Tre er et levende naturmateriale. Variasjoner, synlig kvist og kvae-utslag vil kunne forekomme som en naturlig del av produktet, og ved endring i temperatur og fuktighet kan sprekker i overflate/maling oppstå pga. bevegelser i treet. Dette ansees ikke som mangler ved produktet. Nødvendig ettersyn og vedlikehold må utføres jevnlig, med manuell vasking (unngå høytrykk) og pussing/maling ved behov. Vi anbefaler at du inspiserer annekset grundig hvert halvår.
La huset være innpakket og oppbevar det på et tørt sted, ikke i direkte kontakt med bakken og godt beskyttet mot vær og vind (fuktighet, solskinn osv.), helt frem til det skal monteres. annekspakken må ikke oppbevares i et oppvarmet rom.
Leveringsomfang
- Dobbel dør
- Beslag, skruer og feste
- Gulv
Forpakningsmål
- 440x118x140 cm
- Enkel montering
- 44mm veggtykkelse
- 2-lags glass
- Dobbeltdør
| Generelt | |
|---|---|
| Artikkelnummer | 4743329241360 |
| Leverandørens artikkelnummer | 9006101 |
| Forpakningsmål | |
|---|---|
| Bruttovekt | 1558 kg |
| Høyde | 140 cm |
| Lengde | 440 cm |
| Bredde | 118 cm |









